SLOKOV VARIANT SL39D Kotel na dřevo (3. emisní třída)
Kód / Model: SL39D
Popis
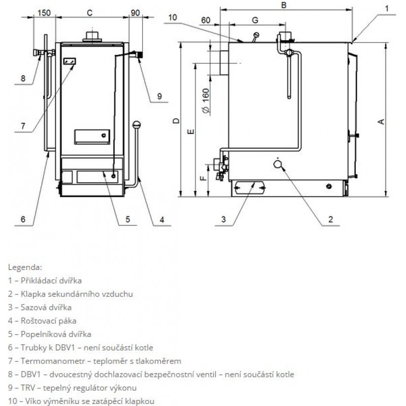
SLOKOV VARIANT SL39D Kotel na dřevo (3. emisní třída)Kotel je svařen z ocelových plechů. Vnitřní prostor je rozdělen vodní přepážkou na násypnou šachtu, spalovací komoru a výměník, kterým proudí spaliny ke kouřovému hrdlu. Pod spalovací komorou a násypnou šachtou je dvoudílný rošt, ovládaný z boční strany kotle pákou.
Regulace sekundárního vzduchu přiváděného do spalovací komory zvyšuje účinnost kotle. Primární vzduch je přiváděn pod rošt regulovatelnou klapkou v popelníkových dvířkách. Regulace se provádí ručně nebo automatickým regulátorem výkonu (TRV), který je dodáván jako příslušenství současně s kotlem. Vstup a výstup topné vody je standartně opatřen přírubami g 2", je možno si ale objednat i kotel s přírubami G 1 1/2" nebo DN 65.
Kouřovod je v ose kotle na zadní straně. Zatápěcí klapka se ovládá z horní části kotle.
Použití kotle, palivo
Ocelový teplovodní kotel VARIANT SL je zdrojem tepla vhodný pro vytápění bytů, rodinných domků, provozoven a obdobných objektů s tepelnou ztrátou kolem 40 kW. Otopný systém může být s otevřenou nebo tlakovou expanzní nádobou, samotížným nebo nuceným oběhem otopné vody, s maximálním přetlakem 200 kPa.
Kotel VARIANT SL39D je přednostně určen pro spalování suchého dřeva s maximální vlhkostí 20%, tj. přířezů z kulatiny do pr. 100mm a délky do 330mm, respektive štípaného dřeva s kůrou nebo bez kůry. Výrobce doporučuje palivo ukládat do přikládací šachty příčně, aby docházelo k plynulému odhořívání a sesuvu paliv. Při použití tzv. „netvarů“, je nutný zvýšený dohled obsluhy.
Dobrá funkce je podmíněna kromě odborné instalace také potřebným komínovým tahem a správnou obsluhou.
Parametry:
Jmenovitý výkon 39 KW
Výška kotle celková 1030 mm
Šířka kotle vč.krytů 670 mm
Hloubka kotle 1030 mm
Vodní objem kotle 83 l
ilustrační foto
Obrázky se mohou lišit od originálního produktu/položky.
Dokumenty
- Pre odoslanie na Slovensko navštívte SLOKOV VARIANT SL39D Kotol na drevo (3. emisná trieda)
Recenze (0)
Napsat recenzi
Hodnocení: Nejhorší Nejlepší
Opište prosím kód z obrázku do pole níže:





