SANELA Sprchový panel SLSN 02EB integr. senzor,2 vody,směšovací bat.,bateriové nap. 92023
Kód / Model: 92023
Popis
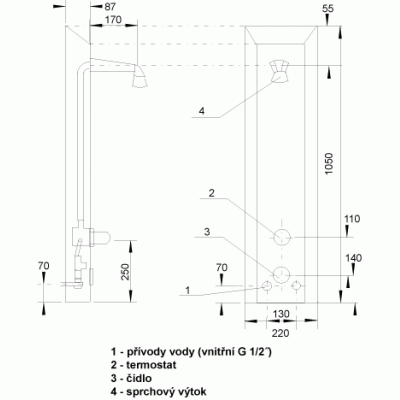
SANELA Sprchový panel SLSN 02EB integr. senzor,2 vody,směšovací bat.,bateriové nap. 92023- nerezové sprchové nástěnné panely se zabudovaným automatickým ovládáním vody
- automatický snímač reaguje na vstup osoby do snímané zóny okamžitým spuštěním vody
- po odchodu z této zóny dojde s prodlevou k vypnutí vody
- prodleva je nastavitelná dálkovým ovladačem SLD 03 v rozmezí 0,25 - 7,75 s.
- funkce automatického vypnutí vody po 5 minutách
- regulace teploty se provádí směšovací baterií
Technické údaje:
Napájecí napětí: 9V
Příkon: 2 W
Dosah: 0,3 - 0,7 m
Doporučený pracovní tlak: 0,1 - 0,6 MPa
Průtok: 12 l/min. (inf. údaj)
Vstup vody: vnější závit G 1/2“
Nastavení teploty vody: směšovací baterií
Specifikace dodávky:
SLSN 02EB - obj. č. 92023 - sprchový panel s elektronikou, sprchová růžice, elektromagnetický ventil (1 ks), směšovací baterie, propojovací hadice, rohový ventil (2 ks), lithiová baterie 9V
Ilustrační foto
Obrázky se mohou lišit od originálního produktu/položky.
- Pre odoslanie na Slovensko navštívte SANELA Sprchový panel SLSN 02EB integr.senzor,2 vody,zmiešavacie bat.,batériové nap. 92023
Recenze (0)
Napsat recenzi
Hodnocení: Nejhorší Nejlepší
Opište prosím kód z obrázku do pole níže:

















