HL Vpuť podlahová 50/75/110 HL310NG
Kód / Model: HL310NG
Popis
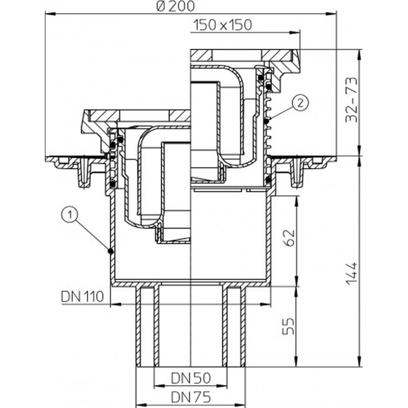
- podlahová vpust DN50/75/110 se svislým odtokem- s pevným izolačním límcem
- sifonovou vložkou
- s plastovým výškově stavitelným nástavcem 34-73mm
- s rámečkem 150x150mm
- s mřížkou 137x137mm z litiny
- stavební kryt v balení
Technické údaje
- Materiál: PE
- Dimense: DN50/75/110
- Hydraulická kapacita: 0,67 l/s
- Hmotnost: 2,408 kg
- Stavební výška: 158 mm
- Nástavec: 34-73 mm/150 x 150 mm Guss
- Vtoková mřížka: Gusseisen 137 x 137 mm
- Třída zatížení: L - 1,5 t
ilustrační foto
Obrázky se mohou lišit od originálního produktu/položky.
- Pre odoslanie na Slovensko navštívte HL Vpuť podlahová 50/75/110 HL310NG
Recenze (0)
Napsat recenzi
Hodnocení: Nejhorší Nejlepší
Opište prosím kód z obrázku do pole níže:







